เมษา คอนโด&โฮเทล
คอนโดแนวคิดใหม่เพื่อการลงทุน หัวหิน ซ.7 มีความสูง 8 ชั้น 1 อาคาร จำนวน 175 ยูนิต หลากหลายสไตล์กับแบบห้องที่มีให้เลือกถึง 11 TYPE ตัวอาคารอยู่ห่างจากทะเลเพียง 200 เมตร
โครงการในเครือ หินน้ำทรายสวย
ทางมาโครงการ อยู่ถนนหัวหินซอย 7 มองเห็นอยู่ด้านซ้ายมือคะ
พร้อมเติมเต็มชีวิตของคุณให้มีสีสันกับสิ่งอำนวยความ สะดวกส่วนกลาง สระว่ายน้ำ ฟิตเนส ที่จะทำให้ชีวิตของคุณมีความหมาย ในพื้นทำเลทองกลางเมืองหัวหินที่คุ้มค่ากับการลงทุนด้วยโปรแกรม INVESTMENT ที่บริหารห้องของคุณด้วยระบบโรงแรม
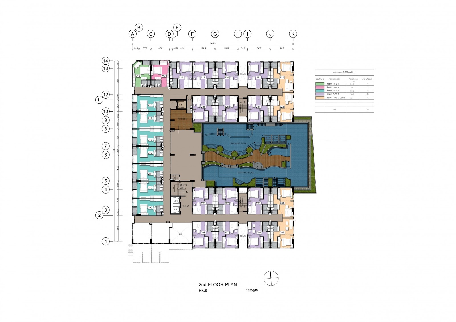
แปลนอาคาร
แปลนห้องที่เราจะรีวิว
ห้องแบบ E Duplex ขนาด 2 ห้องนอน 2 ห้องน้ำ คอนโดแบบ 2 ชั้น ด้านล่างเมื่อเปิดประตูเข้ามาจะพบห้องน้ำอยู่ด้านซ้ายมือ ประกอบด้วยอ่างล้างมือและโถสุขภัณฑ์ มีพื้นที่วางโซฟาสำหรับ 2 ที่นั่ง ที่เชื่อมต่อกับระเบียงเพื่อรับลมและวิวทะเลหัวหิน โต๊ะทานข้าวจัดวางแบบ 4 ที่นั่ง ส่วนมุมครัวจะเป็นรูปแบบตัวไอ ประกอบด้วย ซิงค์ล้างจานและเค้าเตอร์ครัวไว้ให้
ชั้น 2 เป็นโซนพักอาศัยจะเป็น 2 ห้องนอนใหญ่ 1 ห้องน้ำ ห้องนอนที่ติดกับห้องน้ำจะเปิดเข้าจากภายในห้องได้เลย ภายในห้องนอนจะเป็นหน้าต่างช่องแสงที่จะรับแสงจากภายนอกเข้า
ระยะโซฟากับการวางทีวีมีพื้นที่เหลือเพียงพอที่จะวางทีวีขนาดใหญ่ได้
มุมโต๊ะทานข้าวและมุมครัวที่จัดชั้นวางมากมาย





















ไม่มีความคิดเห็น:
แสดงความคิดเห็น